Maison AUBEL
La famille AUBEL a habité dans plusieurs villes à travers le monde. Aujourd'hui, toujours en dialogue avec l'Asie et sensible à l'appel de la montagne, elle souhaite s'établir plus durablement dans la région. L'opération touche à l'agrandissement, l'extension et la réhabilitation de leur maison individuelle non loin de l'ancienne gare de la commune de Bernin avec vue ouverte sur le massif de Belledonne et l'Isère qui coule vers l'Ouest en direction du Rhône.
Données du projet
Lieu : Bernin (69)
Surface : 164 M2
Maître d’ouvrage : Famille AUBEL
Equipe : NUIT뉘 ARCHITECTURE,
Coût de la construction : 200 000 €ht
Architecte: Thomas BONNENFANT
Avancement : PRO - DCE
2026
Notice
Localisation :
Le projet se situe sur la commune de Bernin. Sa population est d'environ 3500 habitants et d'une superficie de 7.67km². Son point le plus haut est à 1200m d'altitude alors que son point le plus bas est à 219m. La maison Berninoise s'inscrit dans la vallée du grésivaudan avec une vue ouverte sur le massif Alpin de Belledonne. Les forêts du massif de la Chartreuse au Nord et de son versant qui lui fait face participe au paysage bucolique du lieu. Le réseau de transport en commun entre Voiron et Pontcharra en passant par la métropôle grenobloise et la commune de Crolle favorise un mode de vie dans l'intermodalité : marche, vélo, roller, bus, train, autostop, avion, parapente etc.
Histoire :
Le torrent du Manival à quelques pas de la parcelle est un site géologique remarquable pour lire la géomorphologie de ce fraguement de territoire. À compter du IVe millénaire av. J.C., la mise en culture progressive des terroirs sur les flancs du Grésivaudan et de la Combe de Savoie par des paysans néolithiques a pu être constatée par des recherches archéologiques2. Au XIe siècle les Bénédictins installèrent un prieuré à mihauteur de la colline de la Véhérie. Jean philippe Colin est le premier maire de la commune le 28 janvier 1790 avec 173 familles.
Cadre règlementaire :
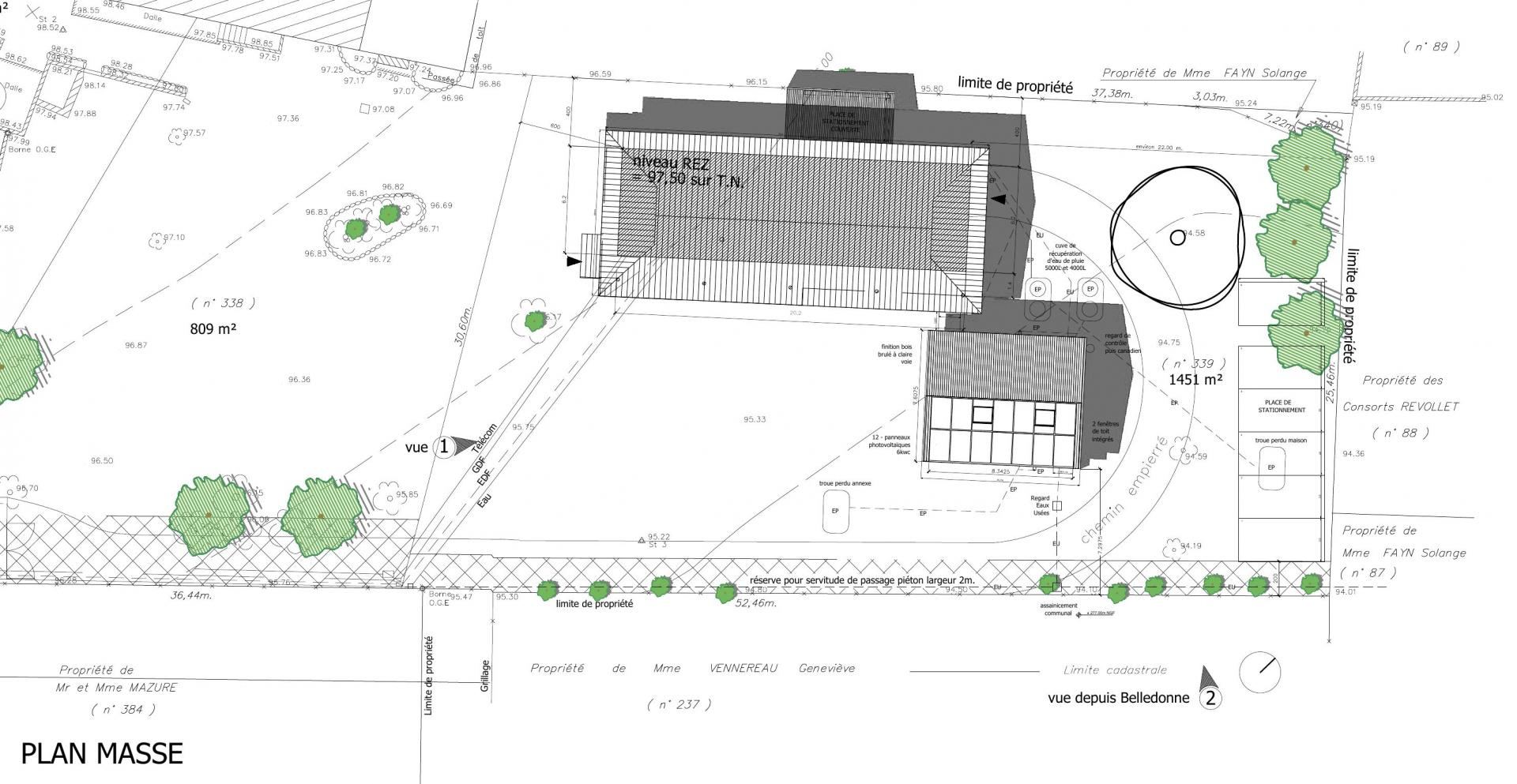
Le Terrain est situé en zone sismique de niveau 4 selon le Plan de Prévention des Risques Naturels (PPRN) afin de réduire la vulnérabilité des personnes et des biens à ces risques. L'étude de sol et de structure permettera la bonne tenue du projet. Situé en zone UB du Plan Local d'Urbanisme, selon l'article UB7 concernant l'implantation des constructions par rapport aux limites sépartatives, au moins égale à la moitié de la hauteur de la construction (d est supérieure ou égale à H/2)2. La hateur au faîtage est limité à une hauteur maximum de 8m selon le PLU de la commune. La nouvelle extension est pensée en analogie à l'organisation chinoise du "四合院" (siheyuan) qui structure le bâti avec une cour intérieure centrale. À Bernin, la topographie, la végétation et le bâti sur le terrain font évoluer la référence vers une réponse plus contextuelle. Dans le projet, la végétation est considérée dans le plan au même titre que le bâti déjà présent. Avec cette grille de lecture, la canopée du platane participe à la formation du quadrilatère du siheyuan alors que sa partie médiane, entre ciel et terre, ouvre l'angle de la figure. Au sud-est du platane se situe la nouvelle extension formant un L. La partie haute du terrain représente le troisième côté de l'organisation du plan. Ainsi, l'addition segmentée de la nouvelle extension, de la maison existante, de la topographie du terrain, de la végétation et du platane à l'un des sommets forme alors un quadrilatère avec de multiples nuances où la biodiversité participe à une géométrie de l'organisation de la maison à Bernin.
Sol, terrain, seuil et fondations :
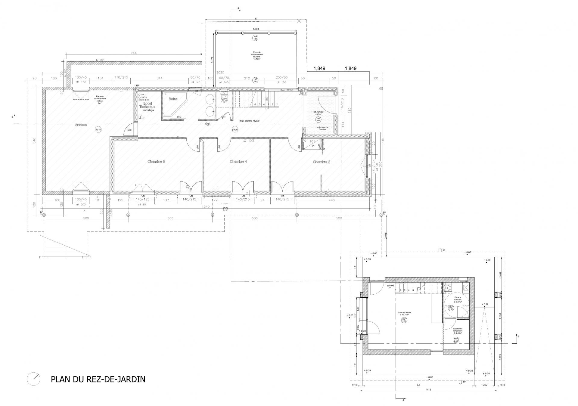
Situé dans le cône de déjection torrentiels de la gorge du Manival, le sol est classifié Jy selon la carte géologique du B.R.G.M au 1/50000e. Créer lors du retrait des glaciers würmiens lors de la fin de la dernière glaciation, il est ancien et stabilisé. Il forme géologiquement un sol hétérogène composé de multiples valeurs : sables, graviers, limons, moraines de fond, dépôts fluvioglaciaires laissée par la fonte et le recul des glaciers. In-situ, le terrain présente une légèrepente inférieure à 10% déverssant vers l'est de la parcelle. Le seuil de l'extension est marqué par un décollement du premier plancher par rapport au rez-de-jardin. Il invite à la pause, faire un pas, voire aux sauts en fonction des occupants. Les fondations sont légères, réversibles et ponctuelles dans le sol préalablement drainé. Elles favorisent la migration de la micro-biodiversité. Cette technique permet aussi une belle résilience de la construction, durable et renouvelable en fonction de l'usage souhaité du terrain. L'eau est une ressource naturelle. Si la falaise scintillante la rend abondante à Bernin, il est toujours utile d'avoir un réflexe de rétention dans son habitat pour équilibrer les ouvrages et les conditions climatiques imperméabilisant les sols. Les eaux pluviales de l'extension sont raccordées à deux cuves de récupération des eaux de pluie d'une capacité cumulée de 9m3. Après bon usage, le surplus d'apports en eau de pluie s'écoule vers deux puits perdus intrinsèques à la parcelle. L'ancien système d'assainissement non collectif via champ d'épandage est démantelé. La cuve septique de 4000l est nettoyée, désinfectée et réemployer dans les 9m3 de récupération d'eau de pluie du projet.
Stationnement voiture et cycle :
Une place de stationnement voiture est prévu par tranche de 40m² de surface de plancher selon l'art. UB 12 du PLU. L'une est couverte en limite de propriété. Le projet
inclu 3% de la surface de plancher en stationnement vélos soit environ 8m².
Niveaux supérieurs et accès :
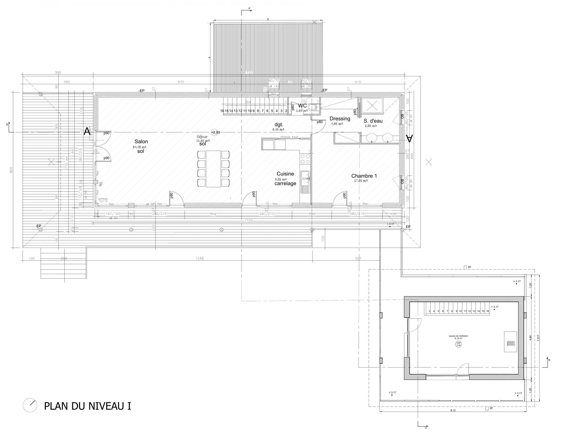
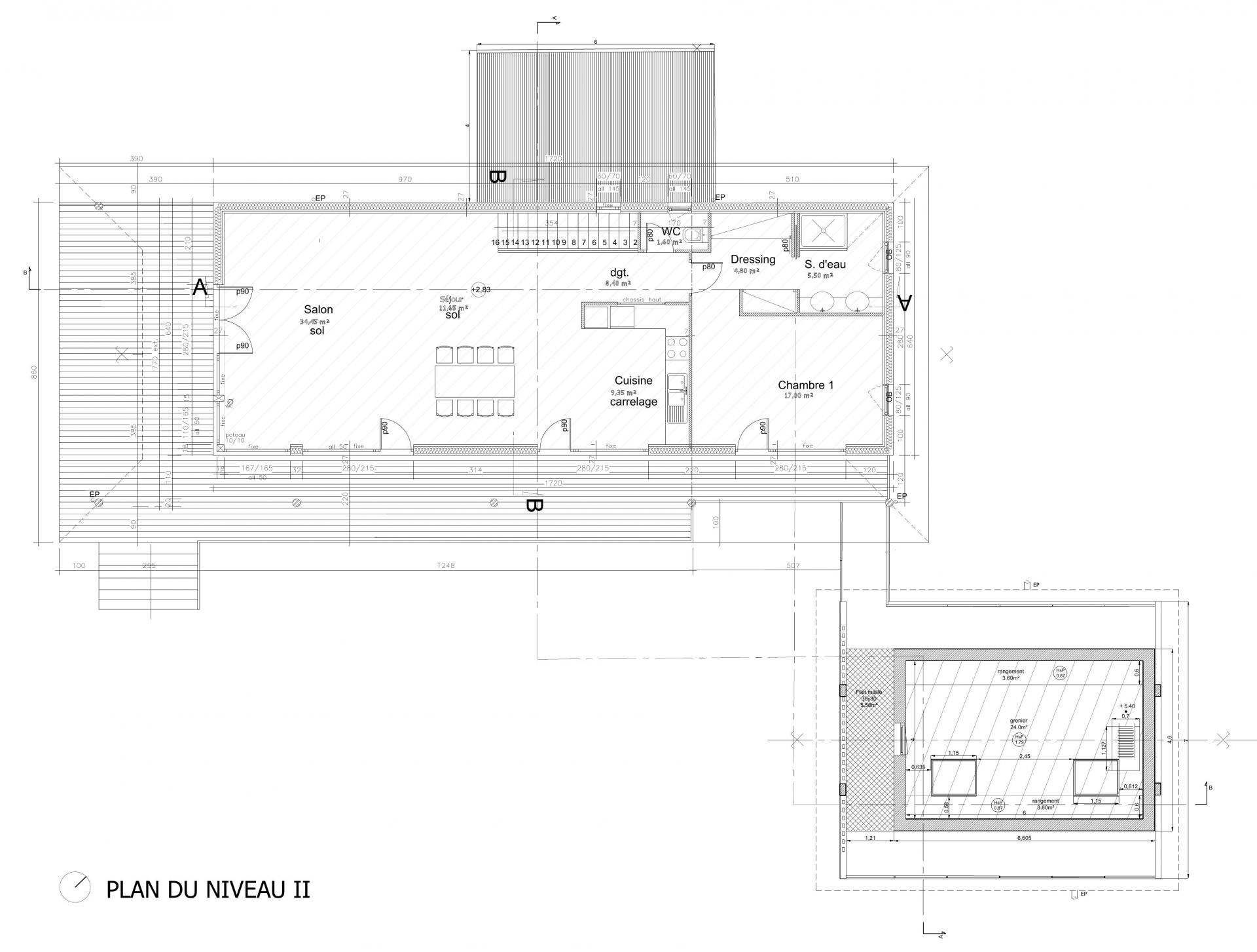
Au premier étage, un jeu de coursives fait écho au "縁側" (engawa) japonais de type "濡縁" (nure-en), espace entre intérieur et extérieur de l'habitat. C'est un espace particulièrement apprécié pour contempler et apprécier le parfum des pluies d'été. Le jeu de passerelles lie les deux niveaux supérieurs de la nouvelle extension et de l'existant. À cet endroit précis du projet, l'interstice suspendu met en relation l'espace ombragé du platane à partir du printemps et l'espace ensoleillé plus intimiste. Dans l'angle du quadrilatère, le platane offre une perméabilité sociale et ludique entre la maison existante et la cuisine d'été du rez-de-jardin.
Toiture, énergie et aire protectrice :
La toiture à une double pente inclinée à 26° degrée. Le pan sud-est accueil 4kw/c de surface photovoltaïque dont l'énergie produite est utilisée pour le fonctionnement de la maison. Deux ouvertures sont intégrés dans la trame cristallin des panneaux solaire. Le faîtage orienté nord-est, sud-ouest est parrallèle au faîtage de la maison existante. Il est consrtuit à une hauteur de moins de 8m du terrain existant en tout point. Le toit présent un débord allant de 0.6m à 1.3m . La partie la plus large permet un espace protégé du soleil Austral et de la pluie. Le pan en vis à vis avec l'existant est en bois brûlé.
Matériaux et caractéristiques :
L'extension neuve est en bardage vertical de type "焼き杉" (shou sugi ban), littéralement cèdre grillé en japonais. Il a pour caractéristique technique de rendre le bois imputrescible. Les pignons sud-ouest et nord-est se composent d'une trame semi-porteuse apparente et massive. Celle-ci est un clin d’oeil aux codes de la construction en bois dont l'assemblage est un art au Japon. Derrière la trame verticale à claire-voie, il est imaginé un filet de détente, de loisir où la rêverie de la petite enfance pourrait y prendre place. La coursive est équipé d'un garde-corps métallique laquée noir à barreaux horizontaux. Pour offrir un accueil au plus grand nombre, le rez-de-jardin de l'existant est accessible aux personnes à mobilité réduite. Les surfaces habitables du projet ont pour programme un atelier, l'augmentation de la surface d'accueil et un espace de méditation rappelant les "정 자 " (Jeongja) coréennes.
Synthèse du projet :
C'est en considérant l'histoire du territoire et de la famille que le projet se constitue. Il met en relation les notions d'habiter en Isère, dans les Alpes, et celle de l'Asie, explorant le vocabulaire et la philosophie associés, mais aussi la matérialité dont l'utilisation du bois rappelle inévitablement les constructions des chalets de montagne et plus encore certaines constructions vernaculaires de la vallée du Grésivaudan avant l'avènement du pisé pour les granges. L'ensemble s'organise en figures quadrilatères, tant en plan qu'en élévation, à l'image de la partition du XIe siècle où la nature est en scène.






